Site With FPP, Magheramore Road, Dungiven, Derry, BT47 4SP

POA £
View Slideshow Arrange a Viewing View Map Share
Key Property Information
  • PricePOA £
  • StyleSite
  • Viewable FromNOW
  • Available FromNOW
  • StatusFor Sale

Property Information

  • Full Planning Permission No: LA01/2024/0558/RM
  • Approx 0.3 Acre Site
  • Dwelling & Double Garage
  • Road Frontage
  • Close To Banagher Forest Park

McAteer Solutions Estate Agents are delighted to welcome this superb opportunity to purchase a frontage site with FPP for a modern build. The site is situated near Banagher Glen Forest Park with countryside views. The site has road frontage with its own separate entrance and is situated on approx 0.3acre site.

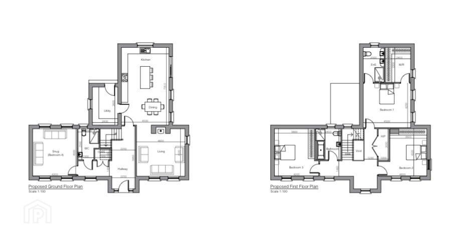
The land has approved full planning permission for a two storey three bedroom property, with 2 living rooms and three bathrooms; with double garage.

Land Comprises Of:

* 1 Site With FPP

* Road Frontage

* Approx 0.3 Acre Site

* Planning Permission No: LA01/2024/0558/RM

If you would like further information on the above sites or to arrange a private viewing. Please contact our Toomebridge office on 02871110050.

Offices: Belfast, Toomebridge, Derry, London

Location