Property Agreed

Site With FPP 40m NW Of 39 Rocktown Road Castledawson, Magherafelt, Derry, BT45 8EQ

Offers Around £90000
View Slideshow View Map Share
Key Property Information
  • PriceOffers Around £90000
  • StyleResidential Land
  • StatusAgreed

Property Features

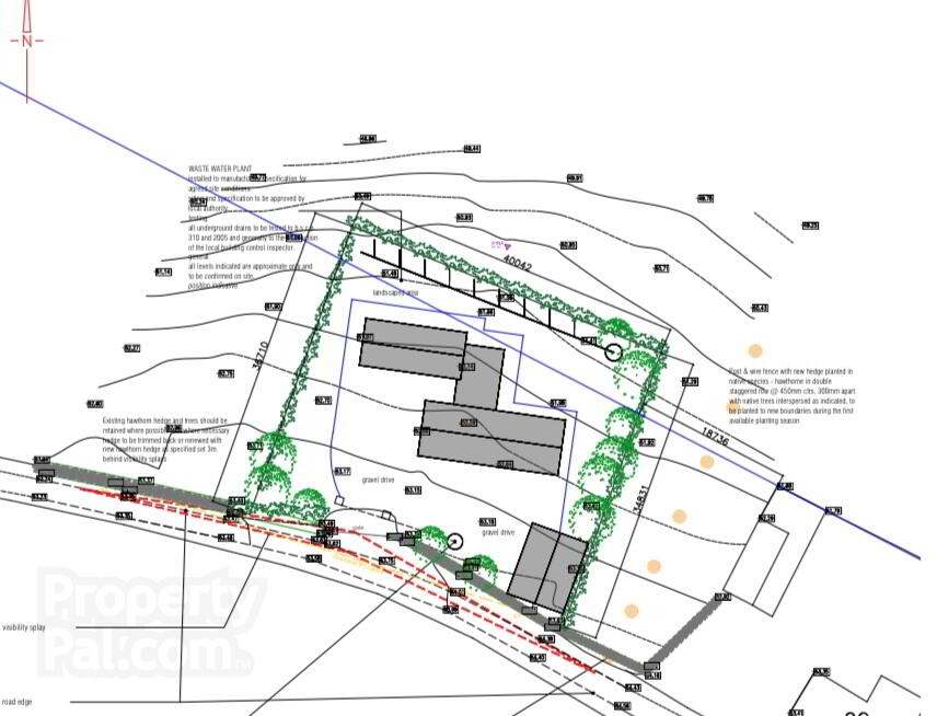
  • Full Planning Permission LA09/2022/0475/F
  • Approx Just Short Of Half An Acre
  • Countryside Views
  • Highly Sought After Area
  • Designed By Slemish Design Studio Architects

Property Information

McAteer Solutions Estate Agents are delighted to welcome this superb building site with full planning permission for a modern countryside home designed by Slemish Design Studio Archictects. It is an excellent opportunity to acquire a countryside site, situated in a highly sought after area.

The site is located approximately 3 miles from Bellaghy and approximately 6 miles from Maghera. The site extends to approximately just short of half an acre. It is an excellent site with scenic views. The site has Full Planning Permission (LA09/2022/0475/F). For further details and viewing arrangements please contact our Toomebridge office on 02879659444 or email: info@mcateersolutions.co.uk

www.mcateersolutions.co.uk

Location