50m North East Of No.19, Loup Road Moneyglass, Toomebridge, Antrim, BT41 3TW

Offers Around £75000
View Slideshow Arrange a Viewing View Map Share
Key Property Information
  • PriceOffers Around £75000
  • StyleResidential Land
  • Viewable FromNOW
  • Available FromNOW
  • StatusFor Sale

Property Information

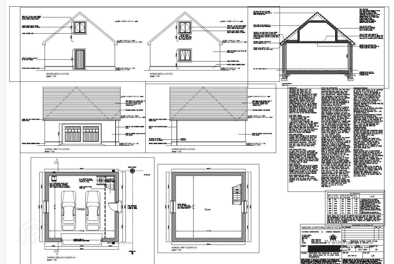
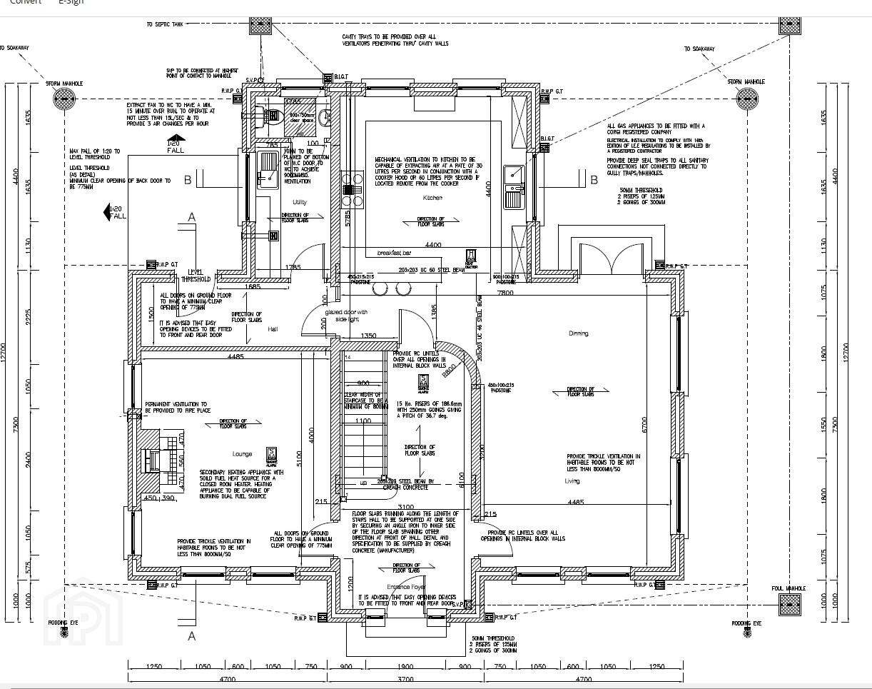
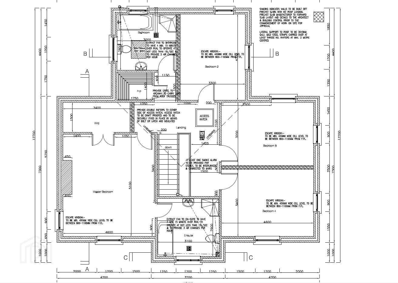
  • Building Site With FPP
  • Foundations Already In Place
  • Private Access Off Loup Road
  • Circa 0.70 Acre
  • Two Storey Dwelling With Garage
  • Sought After Countryside Location
  • Only 30 Minutes From Belfast
  • Planning No: T/2008/0113/F

McAteer Solutions Estate Agents are delighted to welcome for sale this building site with FPP on Loup Road Moneyglass. The site is North East to No.19 and benefits from private access from Loup Road, site size circa 0.70 acre site with FPP for a large two storey dwelling with garage.

The Loup Road is a sought-after countryside location on the outskirts of Toomebridge accessible from the Roguery Rd, 5 minutes from the main A6 Dual Carriageway and only 30 minutes from Belfast with excellent Road networks.

Planning No: T/2008/0113/F

If you wish to discuss any further details, please do not hesitate to get in touch.

E:info@mcateersolutions.co.uk

T:028 79659 444