183a Ballymaguire Rd Stewartstown, Dungannon, Tyrone, BT71 5NN

Offers Around £150000
View Slideshow Arrange a Viewing View Map Share
Key Property Information
  • PriceOffers Around £150000
  • StyleDetached
  • Bedrooms5
  • Receptions4
  • Bathrooms2
  • StatusFor Sale

Property Features

  • Beautiful Countryside Location
  • Private Access Of Ballymaguire Road
  • Spacious Site Circa. 0.6acre
  • Project Will Be Brought To Roof Level With Roof Installed
  • Water & Electricity On Site
  • Building Control Approval For All Works Completed Thus Far
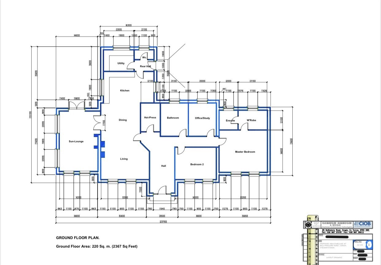
  • Ground Floor Circa 2,367 Sq ft with FPP for First Floor
  • Excellent Opportunity For Self Build or Builder To Complete

Property Information

McAteer Solutions Estate Agents are delighted to offer for sale this fantastic new build project. This property will have the roof completed and be sold as seen allowing a buyer to continue this new build and complete their dream home or alternatively a builder to finish. This new build benefits from a spacious site with countryside views at circa 0.6acre with private access from Ballymaguire Road via a sweeping driveway. Ground floor is circa 2,367 sqft with planning permission for first floor also will benefit from electricity and water on site with certification for all works completed thus far.

Note: Image with yellow line for marketing purposes only of guide boundary.

If you wish to discuss any further information or arrange a site visit please do not hesitate to get in touch.

T:028 79659 444

E:odhran@mcateersolutions.co.uk

McAteer Solutions Estate Agent with offices In Belfast, Toomebridge & Dungiven.

www.mcateersolutions.co.uk

Location