17a Magheramore Road, Garvagh, Coleraine (Foundations Constructed), Co.Derry, BT51 5PW

Offers Over £115000
View Slideshow Arrange a Viewing View Map Share
Key Property Information
  • PriceOffers Over £115000
  • StyleResidential Land
  • Bedrooms4
  • Receptions2
  • Bathrooms3
  • Viewable FromNOW
  • Available FromNOW
  • StatusFor Sale

Property Information

  • 0.5 acre site with FPP
  • Stunning views
  • Private laneway with 26 mature hornbeam trees
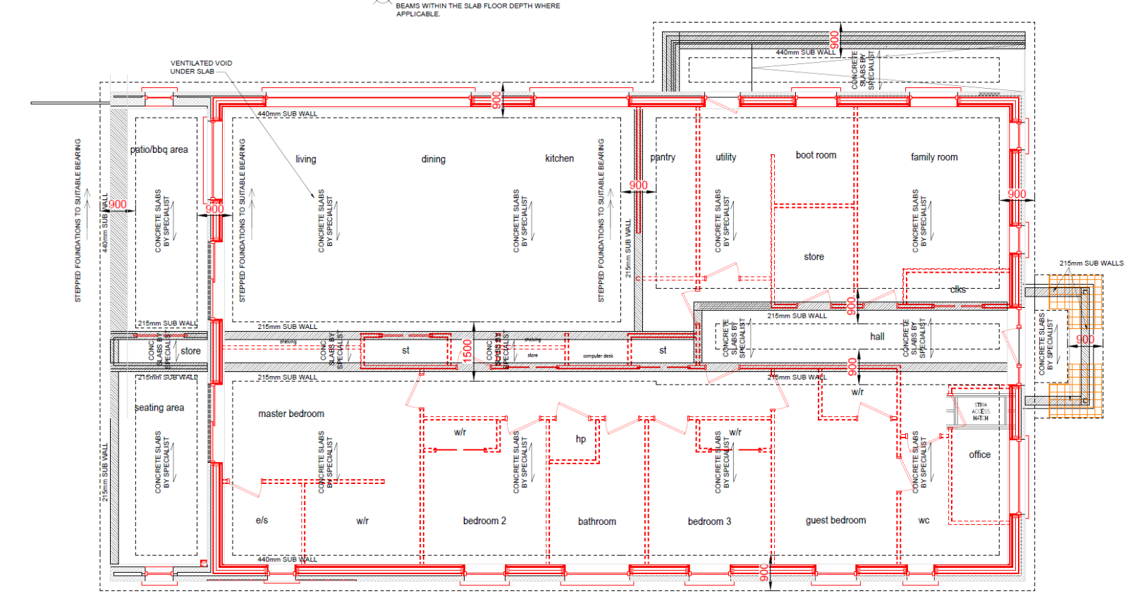
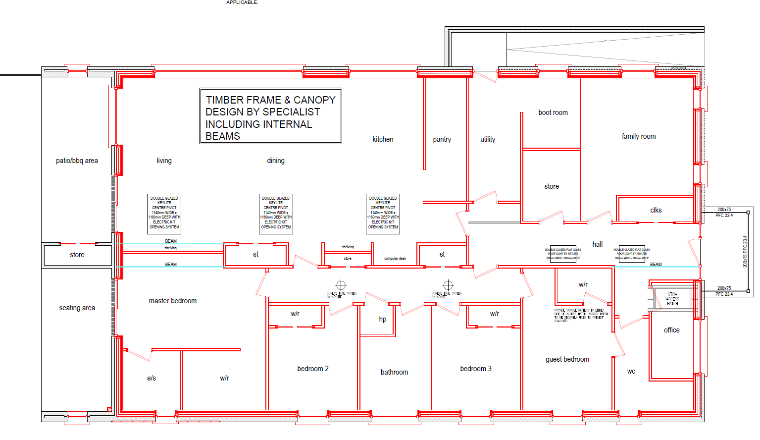
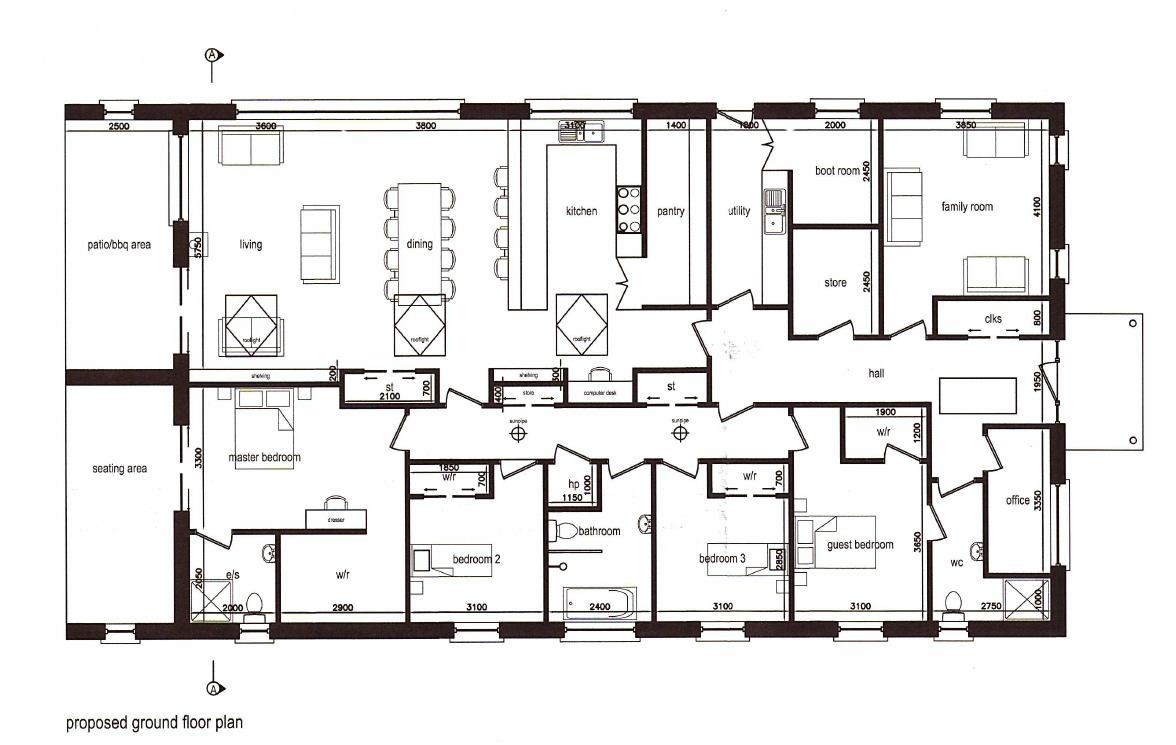
  • Plans passed for a 2,400sqf single-storey residence
  • Building Control application passed
  • Foundations and footings for both house and garage have been completed
  • Hardstanding laid around the site
  • Water and Electric connection

McAteer Solutions Estate Agents are delighted to present this exceptional opportunity for a self build, nestled within the picturesque countryside of Glenullin, just 3 miles from the vibrant town of Garvagh and conveniently located close to Coleraine, Ballymena and Derry City.

Set within a beautifully established half‑acre site, 17A Magheramore Road offers a rare opportunity to complete a meticulously designed 2,400 sq ft single‑storey residence. The home has been crafted to maximise natural light, enhance everyday liveability, and support comfortable, future‑proofed living for all stages of life.

With major groundwork complete and approvals well advanced, this exceptional site offers the opportunity to bring a beautifully considered architectural home to life. With continued progress, the property could be ready for occupation by late 2026 or early 2027, allowing you to enjoy an idyllic rural lifestyle in a home designed for comfort, elegance, and longevity.

Works completed to date:

Significant progress has already been made on the site, allowing construction to begin without delay. The Building Control application has been lodged and accepted, with the only outstanding item being the submission of a timber‑frame racking drawing (to be provided once a supplier is chosen) or confirmation of a traditional blockwork structure. Inspections have already taken place, with supporting documentation available.

A long private lane has been constructed, lined with 26 mature hornbeam trees planted over a decade ago, creating an impressive and established approach to the property. A service duct containing water and telecoms runs alongside the lane, complemented by a 6‑inch drainage pipe. Additional ducts have been installed at each tree pair to accommodate future lighting.

Foundations and footings for both the house and garage have been completed, with hardstanding laid around the site. The property also benefits from water discharge consent and landowner permission for an electricity connection.

Property Design:

  • The striking double‑pitch roof has been purposefully oriented to follow the sun path, allowing daylight to pour into the open‑plan kitchen, dining, and living spaces from morning through evening. Large skylights and expansive floor‑to‑ceiling glazing frame elevated views towards Garvagh Forest and the surrounding countryside, creating a seamless connection between indoors and out.
  • A dramatic feature living area with a vaulted ceiling opens through sliding doors to a covered patio, perfect for year‑round entertaining. This west‑facing aspect provides the ideal position for a hot tub and offers uninterrupted views of long summer sunsets. A centrally located wood burner adds warmth and ambience, anchoring the heart of the home during the winter months.
  • The master suite has been designed as a private retreat, complete with a generous bedroom, semi‑enclosed walk‑in wardrobe, and a beautifully considered ensuite. A dedicated covered patio extends directly from the suite, offering a peaceful outdoor space overlooking the proposed garden.
  • The kitchen layout balances practicality and sociability, featuring a spacious walk‑in pantry, a sink positioned to capture the site’s best views, and seamless connection to the breakfast bar and dining area. Sightlines extend through the living space to the garden and sunset beyond.
  • A well‑placed utility room allows discreet access from the bedroom wing, avoiding disruption to the main living areas. An integrated boot room provides practical storage for outdoor gear and sports equipment, accessible from both front and rear entrances.
  • Bedrooms 2 and 3 sit on either side of the main bathroom, each benefiting from built‑in storage.
  • A dedicated home office offers privacy for remote working or client meetings.
  • Bedroom 4, complete with ensuite, has been designed with flexibility in mind, ideal as a guest suite or as part of a future self‑contained living area with the adjacent second lounge.

This is a fantastic opportunity for a self build located in a tranquil sought after area, we recommend early viewings for this site.

To arrange a site viewing, please contact Olga McAteer at our Toomebridge office on 028 79659 444 or email: olga@mcateersolutions.co.uk

www.mcateersolutions.co.uk

Branches: Belfast | Toomebridge | Derry | Armagh | London

Location